Diverse Nutzungsmöglichkeiten – Bürotrakt in attraktivem Gewerbegebiet

26605 Aurich, Halle zur Miete

Kontaktdaten

Objektdaten

  • Objekt-ID
    5183
  • Objekttypen
    Halle, Halle/Lager/Produktion
  • Adresse
    26605 Aurich
  • Gesamtfläche ca.
    164,81 m²
  • Fläche von
    164,81 m²
  • Baujahr
    2026
  • Verfügbar ab
    01. Juli 2026
  • Mieter­provision (gewerblich)
    2,38 Kaltmieten inkl. MwSt.
  • Kaution
    5.400,00 Euro
  • Kaltmiete
    1.800,00 EUR
  • Nebenkosten
    350,00 EUR

Energieausweis

  • Energieausweis
    nicht erforderlich

Objekt­beschreibung

Beschreibung

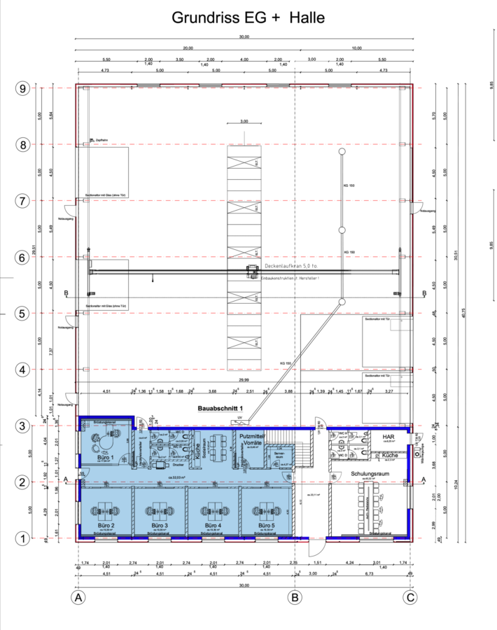
Zur Vermietung steht die vordere linke Bürofläche mit gemeinschaftlichem Zugang (gem. Grundriss).

Die Büroräume sind flexibel nutzbar und verfügen über eine moderne, funktionale Ausstattung. Sie sind hell gestaltet, gut geschnitten und ermöglichen eine vielseitige Nutzung. Netzwerkleitungen sind bereits installiert, sodass ein schneller Anschluss an die IT-Infrastruktur gewährleistet ist.

Sanitäranlagen sowie eine Küche sind vorhanden und stehen zur Nutzung zur Verfügung.

Sonstiges

Zur Vereinbarung eines unverbindlichen Besichtigungs- oder Besprechungstermins stehen wir Ihnen gerne jederzeit zur Verfügung.

Als Immobilienunternehmen sind wir nach § 2 Abs. 1 Nr. 14 und § 11 Abs. 1, 2 Geldwäschegesetz (GwG) dazu verpflichtet, bei der Begründung einer Geschäftsbeziehung die Identität des Vertragspartners festzustellen und zu überprüfen, bzw. sobald ein ernsthaftes Interesse an der Durchführung des Immobilienkauf- oder -mietvertrages besteht. Hierzu ist es erforderlich, dass wir nach § 11 Abs. 4 GwG die relevanten Daten Ihres Personalausweises festhalten (wenn Sie als natürliche Person handeln) – z.B. durch Anfertigen einer Kopie. Das Geldwäschegesetz sieht vor, dass der Makler die Kopien bzw. Unterlagen fünf Jahre aufbewahren muss. Als unser Vertragspartner haben Sie auch eine Mitwirkungspflicht nach § 11 Abs. 6 GwG.

Wir weisen darauf hin, dass die von uns weitergegebenen Objektinformationen, Unterlagen, Pläne und alle weiteren Unterlagen vom Verkäufer bzw. Vermieter stammen. Eine Haftung für die Richtigkeit oder Vollständigkeit der Angaben übernehmen wir daher nicht. Es obliegt daher unseren Kunden, die darin enthaltenen Objektinformationen und Angaben auf ihre Richtigkeit hin zu überprüfen. Alle Immobilienangebote sind freibleibend und vorbehaltlich Irrtümer, Zwischenverkauf- und Vermietung oder sonstiger Zwischenverwertung.

Lage

In zentraler, attraktiver Lage vom Gewerbegebiet Aurich-Schirum. Durch die Anbindung an die Bundesstraße sind die umliegenden Städte allesamt kurzfristig zu erreichen.

Die ungefähre Position der Immobilie auf Google Maps ansehen (Link auf externe Website)

Direktanfrage

* Pflichtangaben
 SSL-verschlüsselt
Immobiliendaten-Import und Darstellung für WordPress: WP-ImmoMakler

Vergleiche Einträge