Lichtdurchflutete 3-Zimmer-Dachgeschosswohnung – Neubau in Top-Zentrumslage

26670 Uplengen, Dachgeschosswohnung zur Miete

Kontaktdaten

Objektdaten

  • Objekt-ID
    5173
  • Objekttypen
    Dachgeschosswohnung, Wohnung
  • Adresse
    26670 Uplengen
  • Wohnfläche ca.
    70,10 m²
  • Zimmer
    3
  • Schlafzimmer
    1
  • Badezimmer
    1
  • Balkone
    1
  • Wesentlicher Energieträger
    Strom
  • Baujahr
    2025
  • Zustand
    Erstbezug
  • Außen­stellplatz
    1
  • Verfügbar ab
    01.02.2026
  • Kaution
    2.550 €
  • Kaltmiete
    850,00 EUR
  • Nebenkosten
    250,00 EUR
  • Heizkosten
    in der Warmmiete enthalten

Ausstattung / Merkmale

  • ✓ Außenstellplatz
  • ✓ Balkon
  • ✓ Neubau
  • ✓ Personenaufzug

Energieausweis

  • Energieausweistyp
    Bedarfs­ausweis
  • Ausstellungsdatum
    10.11.2025
  • Gültig bis
    09.11.2035
  • Gebäudeart
    Wohngebäude
  • Baujahr lt. Energieausweis
    2025
  • Primärenergieträger
    Strom
  • Endenergie­bedarf
    45,00 kWh/(m²·a)
  • Energie­effizienz­klasse
    A
0 25 50 75 100 125 150 175 200 225 250+ H G F E D C B A A+ H G F E D C B A A+ Endenergiebedarf 45,00 kWh/(m²·a)

Objekt­beschreibung

Beschreibung

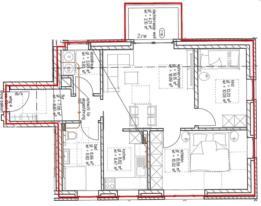
Zur Vermietung steht eine moderne Neubau–3-Zimmer-Dachgeschosswohnung in zentraler Lage von Uplengen-Remels. Die Wohnung befindet sich im Dachgeschoss eines hochwertigen Wohn- und Geschäftshauses und überzeugt durch ihre durchdachte Raumaufteilung. Der Grundriss umfasst einen hellen Wohn-/Essbereich mit Zugang zum Balkon, ein Schlafzimmer, ein Kinder-/Gästezimmer, ein Badezimmer mit Dusche und WC, einen Abstellraum/HWR sowie einen Flur. Ein Aufzug sorgt für komfortables Erreichen der Wohnung auf allen Etagen.

Zusätzlich stehen ein überdachter PKW-Stellplatz sowie ein Abstellraum im Erdgeschoss und ein gemeinschaftlicher Außenabstellraum zur Verfügung.

Ausstattung

Die Wohnung wird mit einer Luft-Wasser-Wärmepumpe beheizt. Es sind Kunststofffenster mit Wärmeschutzverglasung sowie Außenrollladen verbaut.

Sonstiges

Zur Vereinbarung eines unverbindlichen Besichtigungs- oder Besprechungstermins stehen wir Ihnen gerne jederzeit zur Verfügung.

Als Immobilienunternehmen sind wir nach § 2 Abs. 1 Nr. 14 und § 11 Abs. 1, 2 Geldwäschegesetz (GwG) dazu verpflichtet, bei der Begründung einer Geschäftsbeziehung die Identität des Vertragspartners festzustellen und zu überprüfen, bzw. sobald ein ernsthaftes Interesse an der Durchführung des Immobilienkauf- oder -mietvertrages besteht. Hierzu ist es erforderlich, dass wir nach § 11 Abs. 4 GwG die relevanten Daten Ihres Personalausweises festhalten (wenn Sie als natürliche Person handeln) – z.B. durch Anfertigen einer Kopie. Das Geldwäschegesetz sieht vor, dass der Makler die Kopien bzw. Unterlagen fünf Jahre aufbewahren muss. Als unser Vertragspartner haben Sie auch eine Mitwirkungspflicht nach § 11 Abs. 6 GwG.

Wir weisen darauf hin, dass die von uns weitergegebenen Objektinformationen, Unterlagen, Pläne und alle weiteren Unterlagen vom Verkäufer bzw. Vermieter stammen. Eine Haftung für die Richtigkeit oder Vollständigkeit der Angaben übernehmen wir daher nicht. Es obliegt daher unseren Kunden, die darin enthaltenen Objektinformationen und Angaben auf ihre Richtigkeit hin zu überprüfen. Alle Immobilienangebote sind freibleibend und vorbehaltlich Irrtümer, Zwischenverkauf- und Vermietung oder sonstiger Zwischenverwertung.

Lage

Dieses hochwertige Neubauobjekt befindet sich in einer zentralen und dennoch ruhigen Lage im beliebten Ortsteil Remels der Gemeinde Uplengen. Die Umgebung bietet eine hervorragende Anbindung an die B436 sowie die A28, wodurch die Städte Leer und Oldenburg schnell erreichbar sind. Einkaufsmöglichkeiten, Ärzte, Apotheken und gastronomische Angebote befinden sich in unmittelbarer Nähe und sind bequem zu Fuß erreichbar. Schulen und Kindergärten liegen ebenfalls nahe, was die Lage besonders attraktiv für Familien macht. Die ländliche Umgebung bietet zahlreiche Möglichkeiten zur Naherholung wie Rad- und Wanderwege, Wälder und Badeseen. Insgesamt verbindet die Lage modernen Wohnkomfort mit optimaler Infrastruktur und hohem Freizeitwert.

Die ungefähre Position der Immobilie auf Google Maps ansehen (Link auf externe Website)

Direktanfrage

* Pflichtangaben
 SSL-verschlüsselt
Immobiliendaten-Import und Darstellung für WordPress: WP-ImmoMakler

Vergleiche Einträge