Moderne Lagerfläche im Gewerbegebiet Schirum zu vermieten

26605 Schirum, Halle zur Miete

Kontaktdaten

Objektdaten

  • Objekt-ID
    5110
  • Objekttypen
    Halle, Halle/Lager/Produktion
  • Adresse
    26605 Schirum
  • Gesamtfläche ca.
    239 m²
  • Fläche von
    239 m²
  • Baujahr
    2024
  • Zustand
    Erstbezug
  • Verfügbar ab
    01. September 2026
  • Kaution
    3.600,00
  • Kaltmiete
    1.200,00 EUR
  • Nebenkosten
    120,00 EUR

Energieausweis

  • Energieausweis
    nicht erforderlich

Objekt­beschreibung

Beschreibung

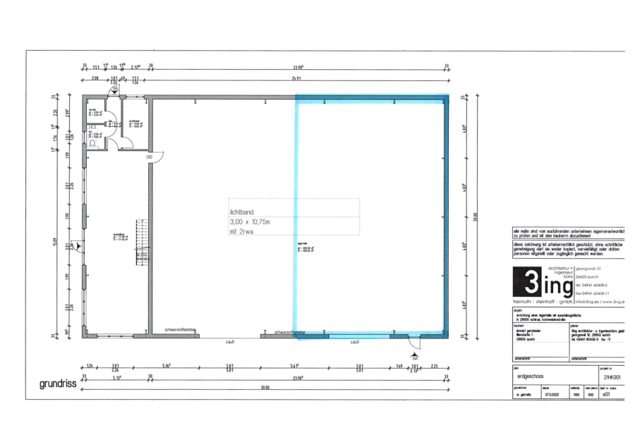
In guter Lage von Aurich-Schirum befindet sich diese Neubau-Lagerhalle (Erstellung in 2024). Die hier angebotene Fläche umfasst ca. 239 m² und verfügt über zwei elektrische Tore (5 x 5 m bzw. 4 x 4 m) sowie eine Durchgangstür.

Optional kann die Außenfläche mitgenutzt werden (nach Absprache).

Sonstiges

Zur Vereinbarung eines unverbindlichen Besichtigungs- oder Besprechungstermins stehen wir Ihnen gerne zur Verfügung.

Als Immobilienunternehmen sind wir nach § 2 Abs. 1 Nr. 14 und § 11 Abs. 1, 2 Geldwäschegesetz (GwG) dazu verpflichtet, bei der Begründung einer Geschäftsbeziehung die Identität des Vertragspartners festzustellen und zu überprüfen, bzw. sobald ein ernsthaftes Interesse an der Durchführung des Immobilienkauf- oder -mietvertrages besteht. Hierzu ist es erforderlich, dass wir nach § 11 Abs. 4 GwG die relevanten Daten Ihres Personalausweises festhalten (wenn Sie als natürliche Person handeln) – z.B. durch Anfertigen einer Kopie. Das Geldwäschegesetz sieht vor, dass der Makler die Kopien bzw. Unterlagen fünf Jahre aufbewahren muss. Als unser Vertragspartner haben Sie auch eine Mitwirkungspflicht nach § 11 Abs. 6 GwG.

Wir weisen darauf hin, dass die von uns weitergegebenen Objektinformationen, Unterlagen, Pläne und alle weiteren Unterlagen vom Verkäufer bzw. Vermieter stammen. Eine Haftung für die Richtigkeit oder Vollständigkeit der Angaben übernehmen wir daher nicht. Es obliegt daher unseren Kunden, die darin enthaltenen Objektinformationen und Angaben auf ihre Richtigkeit hin zu überprüfen. Alle Immobilienangebote sind freibleibend und vorbehaltlich Irrtümer, Zwischenverkauf- und Vermietung oder sonstiger Zwischenverwertung.

Lage

Die ungefähre Position der Immobilie auf Google Maps ansehen (Link auf externe Website)

Direktanfrage

* Pflichtangaben
 SSL-verschlüsselt
Immobiliendaten-Import und Darstellung für WordPress: WP-ImmoMakler

Vergleiche Einträge